「イベント」 Events
開催終了
2026/03/08
3/8 Sun. 《モデルハウス》ZOOT OPEN HOUSE 開催!
3/8 Sun. 《モデルハウス》ZOOT OPEN HOUSE 開催!
長く選ばれてきた木ここち家ラボの規格住宅、
《ZOOT》のモデルハウスを3月8日(日)に公開いたします!
実際の暮らしを体感しながら、気になる価格や間取りもご覧いただけます。
この機会にぜひ見学にいらっしゃいませんか?
《ZOOT》
停電時も安心の太陽光パネルと蓄電池が標準搭載。
電気料金を軽減し、住まう人の見え方にもこだわった高性能住宅です。
■point
・停電時も安心の太陽光発電・蓄電池
・地震や台風にも強い耐震性能
・将来間仕切り
・6連窓で明るいリビング
・オリジナル無垢材
・安心のアフターサービス
・平屋やワークスペース等の幅広い選択肢
【完成見学会参加へのステップ】
「ステップ1」:
■毎週土曜日10:00~13:00開催 WEBセミナー「家づくり勉強会」
私たち木ここち家ラボが長年培ってきたノウハウを活かし、
お家選びやお家を建てるポイントを、様々な角度から丁寧にご説明いたします。
注1) モデルハウスのご見学にあたり本セミナー参加は必須となります。
注2) セミナー参加予約につきましては下記URLより恐れいりますがエントリーをお願いいたします。
「ステップ2」:
■モデルハウスご見学
実際にご見学いただき、広さや開放感、高気密・高断熱の実力を、 実物でご体感できます。
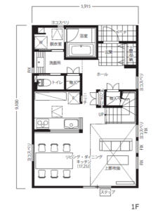
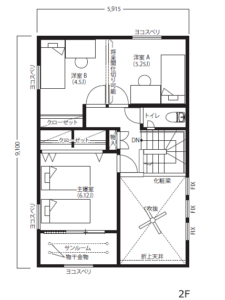
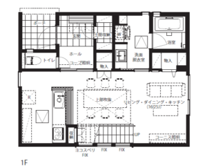
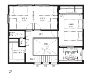
間取り図
■佐倉志津ジャスタウン内


■松戸新八柱ジャスタウン内


開催日時
・
2026/03/08
10:00
11:00
13:00
14:00
15:00
16:00
会場
佐倉志津ジャスタウン
松戸新八柱ジャスタウン
※体感するモデルハウスは担当スタッフよりご案内いたします。
募集組数
各回2組(完全予約制)



