「イベント」 Events
開催予定
2026/02/22
2/22 Sun. 《モデルハウス》GARAGEBASE OPEN HOUSE 開催!
2/22 Sun. 《モデルハウス》GARAGEBASE OPEN HOUSE 開催!
多くのお問い合わせをいただいている、
ガレージのある新プラン、GARAGEBASEのモデルハウスを2/22(日)に公開いたします!
実際の暮らしを体感しながら、気になる価格や間取りもご覧いただけます。
この機会にぜひ見学にいらっしゃいませんか?
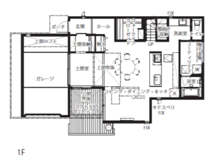
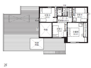
《GARAGEBASE》
ガレージが土間を介してウッドデッキやLDKと繋がる広々空間によって、
ヒトとコトが交わり、遊びも家族も、全部つながる。
そんなワクワクが始まる特別なひとときが広がる、新モデル。
【完成見学会参加へのステップ】
「ステップ1」:
■毎週土曜日10:00~13:00開催 WEBセミナー「家づくり勉強会」
私たち木ここち家ラボが長年培ってきたノウハウを活かし、
お家選びやお家を建てるポイントを、様々な角度から丁寧にご説明いたします。
注1) モデルハウスのご見学にあたり本セミナー参加は必須となります。
注2) セミナー参加予約につきましては下記URLより恐れいりますがエントリーをお願いいたします。
「ステップ2」:
■モデルハウスご見学
実際にご見学いただき、広さや開放感、高気密・高断熱の実力を、 実物でご体感できます。
間取り図


開催日時
・
2026/02/22
10:00
11:00
13:00
14:00
会場
船橋日大前ジャスタウンⅤ
募集組数
各回2組(完全予約制)



