「イベント」 Events
開催中
2026/02/01
2/1 Sun. 《新モデル》FlexBox 完成見学会 開催!
2/1 Sun. 《新モデル》FlexBox 完成見学会 開催!
今回木ここち家ラボから、新しい規格住宅《可変する家、FlexBox》が完成しました。
そこで、モデルハウスを2/1(日)に公開いたします!
実際の暮らしを体感しながら、気になる価格や間取りもご覧いただけます。
この機会にぜひ見学にいらっしゃいませんか?
《FlexBox》
規格住宅より自由に、注文住宅より安く、「ずっとつづく、あなたらしいくらし」を叶える、新しい選択肢。
少ない手間で空間を自在に分割できるこの家は、暮らしの変化に合わせて壁も収納も自分で簡単に更新できます。
【完成見学会参加へのステップ】
「ステップ1」:
■毎週土曜日10:00~13:00開催 WEBセミナー「家づくり勉強会」
私たち木ここち家ラボが長年培ってきたノウハウを活かし、
お家選びやお家を建てるポイントを、様々な角度から丁寧にご説明いたします。
注1) モデルハウスのご見学にあたり本セミナー参加は必須となります。
注2) セミナー参加予約につきましては下記URLより恐れいりますがエントリーをお願いいたします。
「ステップ2」:
■モデルハウスご見学
実際にご見学いただき、広さや開放感、高気密・高断熱の実力を、 実物でご体感できます。
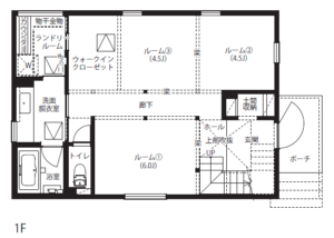
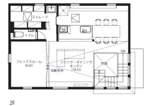
間取り図


開催日時
・
2026/02/01
10:00
11:00
13:00
14:00
15:00
16:00
会場
船橋日大前ジャスタウンⅤ
募集組数
各回2組(完全予約制)



