「コラム」 Column
土地50坪に駐車場2〜3台・延床面積30坪の間取りは可能|平屋・2階建て実例、後悔しない家づくりを解説
50坪の土地に、駐車場2〜3台分を確保したうえで、延床面積30坪以上の間取りの家づくりをすることは可能です。
ただし、土地形状や周辺環境によっては、工夫が必要なケースがあることも事実です。
今回は土地をフル活用した住宅建築を得意としている千葉のハウスメーカー『木ここち家ラボ』が、50坪の土地に理想の家づくりをする方法を、わかりやすく解説します。
利便性が高く、ご家族がのびのび暮らせる家づくりのために、ぜひ最後までごらんください。
千葉でご家族の想いと個性を詰め込んだ家づくりを検討中の方は、木ここち家ラボへお問い合わせください。
Contents
土地50坪に駐車場2〜3台・延床面積30坪の間取りは可能

家づくりの際に確保できる駐車場のスペースは、土地の状況に応じて変化します。
そこではじめに、「駐車場2〜3台分」を確保できる土地選びの基礎知識をご紹介します。
- 土地50坪の広さの目安
- 駐車場1台・2台・3台に必要な幅・奥行き
- 50坪の土地に建築できる住宅の延床面積
- 【注意】土地に付随する建築制限によって駐車スペースや間取りが制限されるケースもある
土地50坪の広さの目安
土地50坪は畳の面積に換算すると約100畳で、25mプールと同程度の広さです。
駐車場1台分に必要な面積は約3〜5.5坪(軽自動車〜ワンボックスカー)なので、50坪の土地に家を建てる場合には、駐車場2〜3台分を十分に確保できる可能性があります。
ただし50坪の土地であっても以下のような変形地は、駐車場や住宅建築に大きな制限が生まれます。
- 四角形ではない変形地
- 道路と高低差がある
- 傾斜がある
- 土地内に段差がある など
駐車場1台・2台・3台に必要な幅・奥行き
駐車場は主に「土地形状」「建物配置」「接道状況」に応じて設けることになるため、土地内の一箇所にまとまるとは限りません。
駐車場1台・2台・3台分に必要な幅・奥行きを一覧表にまとめてご紹介するので、駐車場のレイアウトを決める参考にしてください。
【駐車場1台分に必要な幅・奥行き】
| 車種 | ドア開閉を考慮しない ギリギリのスペース (幅×奥行) | ドア・トランク開閉を考慮した余裕のあるスペース (幅×奥行) |
| 軽自動車 | 約1.5坪 (約1.5m×約3.5m) | 約3.1坪 (約2.3m×約4.5m) |
| 普通自動車 | 約2.6坪 (約1.8m×約4.8m) | 約4.7坪 (約2.7m×約5.8m) |
| 大型・ワンボックス | 約2.8坪 (約1.9m×約5.0m) | 約5.4坪 (約3.0m×約6.0m) |
【駐車場2台分に必要な幅・奥行き(ドア・トランク開閉を考慮した余裕のあるスペース)】
| 車種 | 並列 (幅×奥行) | 縦列 (幅×奥行) |
| 軽自動車 | 約6.2坪 (約4.6m×約4.5m) | 約6.2坪 (約2.3m×約9.0m) |
| 普通自動車 | 約9.4坪 (約5.4m×約5.8m) | 約9.4坪 (約2.7m×約11.6m) |
| 大型・ワンボックス | 約10.8坪 (約6.0m×約6.0m) | 約10.8坪 (約3.0m×約12.0m) |
【駐車場3台分に必要な幅・奥行き(ドア・トランク開閉を考慮した余裕のあるスペース)】
| 車種 | 並列 (幅×奥行) | 縦列 (幅×奥行) |
| 軽自動車 | 約9.3坪 (約6.9m×約4.5m) | 約9.3坪 (約2.3m×約13.5m) |
| 普通自動車 | 約14.1坪 (約8.1m×約5.8m) | 約14.1坪 (約2.7m×約17.4m) |
| 大型・ワンボックス | 約16.2坪 (約9.0m×約6.0m) | 約16.2坪 (約3.0m×約18.0m) |
50坪の土地に建築できる住宅の延床面積

土地には1筆ごとに「建築制限」が定められていて、住宅の延床面積に影響する主な建築制限は、以下のとおりです。
| 建築制限 | 内容 |
|---|---|
| 建ぺい率 | ・土地面積に対する建築面積の割合 (一般的には1階部分の面積) ・住宅を建築可能な土地は30〜80%が一般的 |
| 容積率 | ・土地面積に対する延床面積の割合 ・住宅を建築可能な土地は80〜300%が一般的 |
(例)50坪の土地で「建ぺい率:60%」「容積率:200%」の場合、以下の住宅を建築可能
・建築面積:上限30坪まで
・延床面積:上限100坪まで
家づくりの際には、駐車場だけではなく「自転車置場」「玄関アプローチ」「門扉の設置スペース」なども考慮する必要がありますよね。
ハウスメーカーには、間取り作成と同時進行で、外構デザインの組み立ても依頼することをおすすめします。
延床面積30坪ほどの平屋・2階建てを建築した実例
】ずっと、つづく、くらし.jpg)
次に、延床面積30坪ほどの平屋・2階建て実例も紹介します。
30坪は「収納スペースも含めた3〜4LDKの間取り」が十分に可能な面積ですので、ぜひ参考にしてください。
平屋
こちらは「25.05坪、1LDK+ロフト」の平屋実例で、「玄関直結LDK」「固定階段を設けたロフト(8.5畳)」など、モダンなスタイルの間取りです。


こちらの記事で、平屋づくりのポイントをご確認いただけます。
〈関連ページ〉20坪・1LDK〜のシンプルでおしゃれな設計の平屋実例|老後や一人暮らしのこだわりポイントも解説
2階建て
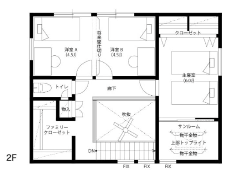
こちらは「29.29坪、2LDK」の2階建て実例で、2階の子ども部屋は将来の間仕切り設置を想定しています。
「ワークルーム」「ファミリークローゼット」「サンルーム」など余裕のある空間活用で、ご家族がのびのびと過ごせる家が完成しました。


こちらは「30.80坪、3LDK」の2階建て間取り実例です。
玄関周辺のスペースをたっぷりと確保して水回りスペースを集めることで、家事動線の良い住宅となりました。

千葉の木ここち家ラボには、ほかにもたくさんの施工事例がございますので、ぜひごらんください。
土地50坪の家づくりをするうえで後悔しない駐車場のつくり方
家づくりの際には、主に「土地形状」「建物配置」「接道状況」によって、駐車場の位置がある程度限られます。
以下の点を考慮して、ご家族にとって使い勝手の良い駐車場をつくりましょう。
- 入庫・出庫の利便性を考慮
- ご近所トラブル回避
- 玄関まで余裕を持って移動できる通路を確保
- 必要に応じて駐輪場・物置スペースなども確保
- 駐車場の造作によって費用が変動する点に注意
入庫・出庫の利便性を考慮
「入庫・出庫の利便性と安全性」を確保するために、以下の要素に応じて適切な位置に駐車場を配置してください。
- 縁石の切り下げ位置
- 左折・右折どちらから入庫・出庫しやすいか
- 電柱の位置
また、土地に接する歩道・道路の見通しが悪い場合には、以下のような事故を避けるために、カーブミラーの設置も検討が必要です。
- 通行人や車との接触事故
- 周辺住宅の門扉破壊・植栽に接触 など
ご近所トラブル回避
駐車場の排気ガス・ライトなどが、ご近所の方の生活に影響しない配慮も必要です。
- 隣接する土地に排気ガスが噴出される場合は、土地の境界にブロック塀を設置
- 車のヘッドライトが隣家の窓を直接照らす場合は、透過性のないフェンスや植栽を設置
- 隣家に近い位置に駐車場を配置する場合は、地面を砂利ではなくコンクリート敷きにする(車に乗降する際の足音に配慮)
- ドアの開閉時・駐車時のドアミラーが土地の境界線を越えないよう、余裕を持って駐車スペースを確保
- カーポートを設置する場合には、カーポートの屋根から雨水・雪が隣地に落ちないように配慮
- 車に乗降する際に隣家のリビングなどが見える場合にはフェンスの高さを調整 など
玄関まで余裕を持って移動できる通路を確保

土地いっぱいに駐車場をつくり玄関まで余裕を持って移動できる通路(玄関アプローチ)がない場合、以下のような不便が生まれます。
- 荷物を持って土地に出入りする場合に、車に人や荷物がぶつかる
- 自転車を敷地内に乗り入れるのが困難 など
通路に必要な幅は以下のとおりですので、駐車場のレイアウトを決める際に考慮しましょう。
| 通路の利用シーン | 幅の目安 |
| 両手に荷物を持って移動 | 約100cm 〜 約120cm |
| 自転車を押しながら歩く | 約120cm |
| ベビーカーを押して歩く | 約100cm |
| 親子で手をつないで歩く | 約120cm |
| 車椅子の通行・旋回 | ・通行:約90cm ・旋回:約150cm |
| 介助者と一緒に通行 | 約120cm 〜約150cm |
必要に応じて駐輪場・物置スペースなども確保
駐輪場・物置スペースなどに必要なスペースの目安は、以下のとおりです。
| 項目 | 必要面積の目安 (幅×奥行) |
| 駐輪場 | ・1台:約60cm×約180cm ・2台目〜:約100cm×約180cm ※旋回も考慮する場合はさらにスペースが必要 |
| 物置 (小型) | 約100cm×約80cm |
| タイヤ置き場 (2段4本分) | 約80cm×約50cm |
| 宅配ボックス (独立型) | 約50cm×約50cm |
| ゴミ置き場 | 約100cm×約60cm |
土地面積に余裕がない場合には、「玄関土間を広くしてタイヤなどを置く」「宅配ボックスは門柱一体型にする」などの工夫も可能です。
駐車場の造作によって費用が変動する点に注意
駐車場は造作によって費用が大きく変動するため、家づくりの早い段階から資金配分をしておく必要があります。
| 駐車場の造作 | 費用相場 (2台分) |
| 青空駐車場で地面だけ整備 | ・土間コンクリート:40万円~70万円前後 ・アスファルト舗装:18万円~30万円前後 ・インターロッキング:36万円~70万円前後 |
| カーポート設置 | 40万円~100万円前後 |
| 2階のバルコニーなどせり出した部分の下を駐車場にする | 100万円~300万円前後 |
| ビルトインガレージ | 500万円~800万円前後 |
千葉でマイホームのプランを検討中の方は、木ここち家ラボへお問い合わせください。
土地面積をフル活用した利便性の高いおしゃれなプラン提案で、ご家族の家づくりをサポートいたします。
50坪の土地に「無駄のない広々暮らせる間取りづくり」をするアイデア

近年は、住宅価格が上昇し続けていますよね。
延床面積は住宅価格に直結するため、「1坪でも小さくする方法はないか」とお考えの方がいらっしゃると思います。
間取り作成に役立つ省スペースのアイデアもご紹介するので、参考にしていただけると幸いです。
- 廊下なしの間取り
- 玄関直結LDK
- リビング内階段
- 窓際ベンチ収納
- アイランドキッチン・対面キッチンよりも壁付キッチンの方が省スペース
- スキップフロアなど室内に段差を設けて収納スペースを確保
- 開き戸ではなく引き戸を採用して、使用できる面積を広くする(引き戸はドアの開閉スペースを確保する必要がない)
また、以下のような要素を取り入れると視線が遠くまで抜けるため、実際の面積よりも空間を広く感じる効果があります。
- 高窓・地窓
- 勾配天井・吹き抜け
- 間接照明で天井や床を照らす
- LDKとテラスやウッドウッドデッキの床位置をフラットにする
- ハイドア
- スケルトン階段
- 家具をロースタイルで統一
千葉でマイホームのプランを検討中の方は、木ここち家ラボへお問い合わせください。
ご家族の理想の暮らしを実現できる間取りプランを提案いたします。
まとめ
50坪の土地に「駐車場2〜3台・延床面積30坪以上」の家づくりをする際に、知っておいて頂きたいポイントなどをご紹介してきました。
50坪の土地は比較的余裕のある面積ですが、駐車場2〜3台を確保する場合にはスペース活用の工夫が必要です。
今回ご紹介した情報を、ご家族の理想の家づくりに取り入れていただけると幸いです。



