Event
「イベント」
2025.11.22
2025.11.22
2025.11.22
2025.11.22
2025.11.23
2025.11.23
2025.11.23
2025.11.23
イベント終了
11/22より販売開始!船橋日大前ジャスタウンⅤ 完成見学会開催
これまで予告広告としてご案内していた【船橋日大前ジャスタウンⅤ】が、いよいよ11/22より販売開始となります。
それに伴い、11/22(土)・23日(日)にモデルハウスの完成見学会を開催!
実際の暮らしを体感しながら、気になる価格や間取りもご覧いただけます。
販売開始直後の今がチャンスです。ぜひこの機会にお越しください。
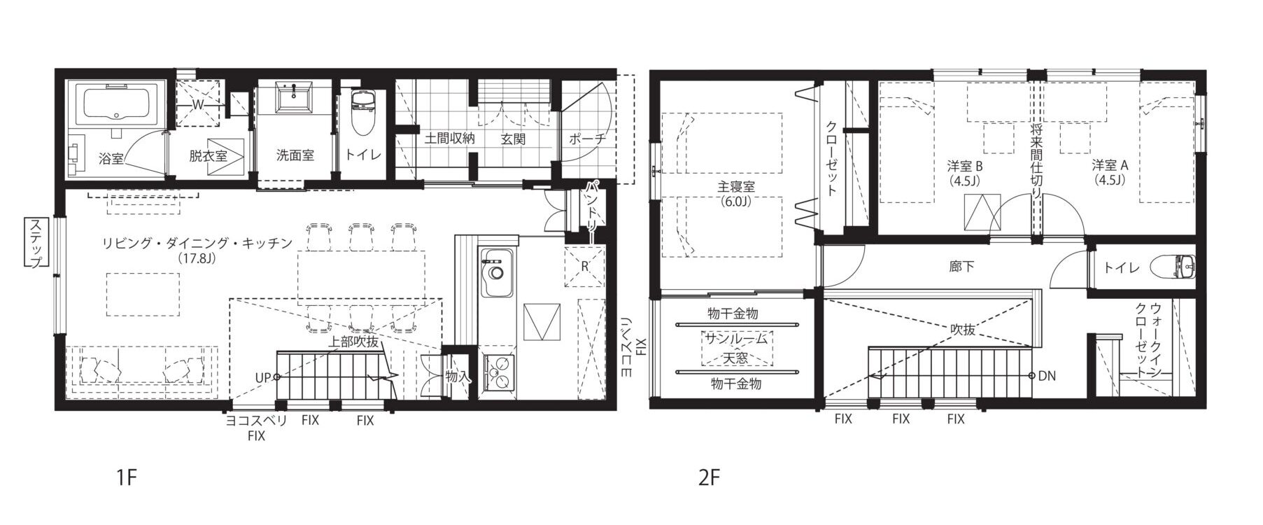
-4号棟-
窓から覗く空と2階リビングの木の温もりの調和によって、日々の暮らしを癒す邸。
-6号棟-
太陽光パネル・蓄電池搭載のセミオーダープランZOOTモデル棟。
印象的な6連窓かと吹抜けがもたらす開放感が魅力の邸。
【完成見学会参加へのステップ】
<ステップ1>
■毎週土曜日10:00~13:00開催 WEBセミナー「家づくり勉強会」
私たち木ここち家ラボが長年培ってきたノウハウを活かし、
お家選びやお家を建てるポイントを、様々な角度から丁寧にご説明いたします。
注1) モデルハウスご見学するにあたり本セミナー参加は必須となります。
注2) セミナー参加予約につきましては下記URLより恐れいりますがエントリーをお願いいたします。
<ステップ2>
■完成見学会ご参加
実際にご見学いただき、広さや開放感、高気密・高断熱の実力を、 実物でご体感できます。
ご来場を心よりお待ち申し上げております。
間取り
-4号棟-

-6号棟-

イベント名
11/22より販売開始!船橋日大前ジャスタウンⅤ 完成見学会開催
開催日時
日時:11/22(土)
時間:10:00
日時:11/22(土)
時間:11:00
日時:11/22(土)
時間:14:00
日時:11/22(土)
時間:15:00
日時:11/23(日)
時間:10:00
日時:11/23(日)
時間:11:00
日時:11/23(日)
時間:14:00
日時:11/23(日)
時間:15:00
期間: ~
会場
船橋日大前ジャスタウンⅤ




